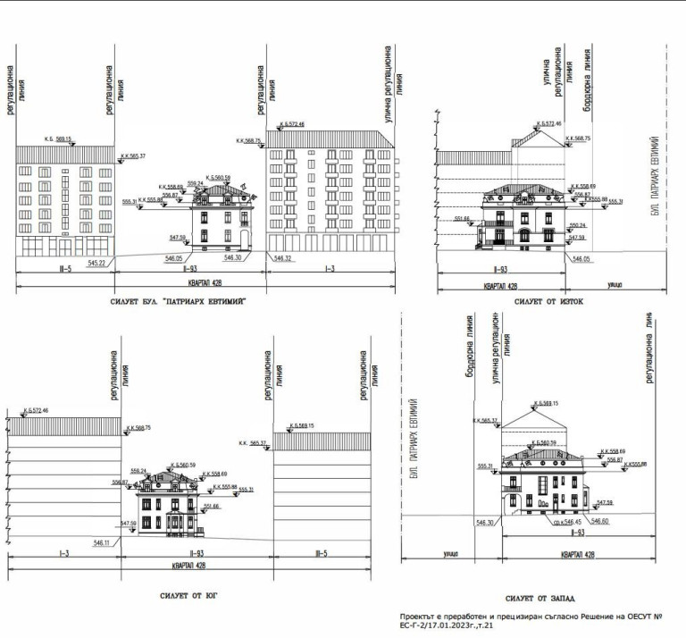
Одобрен е от главния архитект на Столична община Здравко Здравков проект за подробен устройствен план, който предвижда къщата на Гешов на бул. "Патриарх Евтимий" №7 в София да бъде запазена в автентичния вид. Със заповедта на главния архитект се изменя планът за регулация и застрояване и работен устройствен план за УПИ III-4, кв. 428, м. "ГГЦ Зони Г8 и Г10" по плана на град София, район "Средец", съобщиха от общината.
Одобреният през 2004 г. подробен устройствен план (ПУП) предвиждаше премахване на сградата, която е паметник на културата, както и изграждане на 7-етажен хотел, във фасадата на който само се маркира съществуващата стара сграда. По настояване на кмета на София Йорданка Фандъкова за запазване къщата на Гешов започна процедура за изменение на действащия план и изработване на работен устройствен план. Заповедта за изработването на плана беше обжалвана от собственика на имота и след дълги съдебни процедури делото беше решено в полза на Столична община от Върховния административен съд.
Новият план предвижда запазване на съществуващата в имота сграда - къщата на Иван Гешов, министър-председател в 32-ото правителство на България в периода 1911 - 1913 г. Тя е със статут на единична архитектурно-строителна и художествена недвижима културна ценност с категория "местно значение" и попада в обхвата на групова недвижима културна ценност "Жилищна зона "Център". Освен автентичният вид на сградата, се запазват и зелените площи в имота, без да се предвижда ново застрояване.
"Отреждането на имота е за детско заведение, каквото е било в продължение на десетки години, преди придобиването му от сегашния собственик", посочват още от Столична община.

Източник: Столична община